top of page

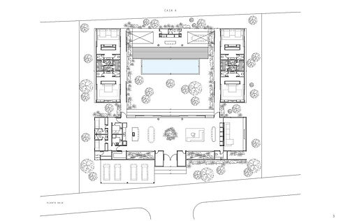
CASA A
-
SUPERFICIE TOTAL: 722 m²
ÁREA INTERIOR:
-
Cocina Comedor
-
Sala de estar
-
Bar
-
Sala de TV
-
Jardín interior
-
2 bodegas
-
4 recámaras principales
-
4 baños en suite.
ÁREA EXTERIOR:
-
Asador
-
Sala de estar
-
Comedor
-
Alberca de 56 m²
-
Terraza
-
1 cava
-
Baño
ÁREA DE SERVICIO:
-
Cocina
-
Lavandería
-
2 recámaras de servicio
-
Despensa
-
1 bodega
-
4 estacionamientos





bottom of page














